深圳市伊俐信科技有限公司
消防產品,認證,檢測,技術,管理,咨詢服務中心
消防產品,認證,檢測,技術,管理,咨詢服務中心
2023-01-12 14:20:51 責任編輯:深圳市伊俐信科技有限公司 瀏覽:0
1、住宅建筑單元與單元拼接時,單元之間凹槽的正對外窗間距有何要求?
答復:根據《公消建字【2016】19號文》及《建筑設計防火規范》國標18J811-1第5.2.2圖示9,住宅單元之間的凹槽山墻面上的正對外窗間距不應小于6米,否則相對的外窗需要設置乙級防火窗或防火擋墻等措施。(附圖1.2.9)

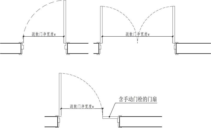
2、建筑內疏散門或安全出口的凈寬度如何計算?子母式防火門子扇不具備自動關閉功能,子母式防火門使用場所是否限制?
答復:疏散門凈寬度的計算方法如下:
1.對于單扇門,門的凈寬度為門扇呈90°角打開時門框內緣至門表面的水平距離。
2.對于雙扇門,為兩扇門同時呈90°角打開時,兩扇門相對表面之間的水平距離。(附圖1.5.1-1)
3.當門扇采用手動門栓固定在門框或地面上時,該門扇的寬度不計入疏散寬度,此時需要保證其他門扇開啟后門口的凈寬度不小于規定值,即從固定門扇的邊緣至另一門扇開啟90°后的門內表面的水平距離。
4.門的把手等附件,當凸出門表面不大于80mm時,可以不考慮其對疏散的影響。
5.子母式防火門子扇不具備自動關閉的功能時,不能滿足《建筑設計防火規范》6.5.1條的要求,疏散寬度按母門凈寬度計算。(附圖1.5.1-2)


3、計算疏散距離,是計算到防煙樓梯間的門還是防煙前室門?
答復:防煙前室是防煙樓梯間的一部分,計算疏散距離時,計算到防煙樓梯間前室的門。
4、消防控制室、消防水泵房開向建筑內的門是乙級防火門嗎?
答復:《民用建筑電氣設計標準》GB51348-2019續表23.4.2中注明消防控制室的門應為外開雙扇甲級防火門。《消防給水及消火栓系統技術規范》GB50974-2014第5.5.12條第三款規定附設在建筑物內的消防水泵房開向疏散走道的門應采用甲級防火門。《建筑設計防火規范》GB50016-2014(2018年版)第6.2.7條中規定:通風、空氣調節機房和變配電室開向建筑內的門應采用甲級防火門,消防控制室和其他設備房開向建筑內的門應采用乙級防火門;但第1.0.7條規定:建筑防火設計除應符合本規范的規定外,尚應符合國家現行有關標準的規定。故消防控制室、消防水泵房開向建筑內的門應設置為甲級防火門。
5、設置乙級防火窗時需要自行關閉嗎?
答復:應為不可開啟的窗扇或火災時可自行關閉乙級防火窗。
6、消防水箱進水管口最低點高出溢流邊緣的空氣間隙,是執行《消水規》
GB50974-2014、還是《建水準》GB50013-2019的相關規定?
答復:空氣間隙定為150mm,兩本規范里的相關規定均可滿足。
7、汽車庫內布置有連續的車位,導致消火栓必須得在連續車位區域內時,能
否將消火栓箱布置在柱子背面?
答復:汽車庫消火栓的布置,應結合項目自身的車位布置、柱網等土建條件,考慮汽車和人員通行、車門開啟等因素,應設置在易于發現和便于取用的部位。消火栓箱確需安裝在柱子上時,宜布置在柱子面向汽車通道的一側。當設置在停車位之間時,應確保消火栓箱門的開啟,栓門的開啟角度不應小于120°,且應設置指示消火栓箱位置的永久標識。
土建條件受限時可采用非標產品,如頂部進水的窄型消火栓箱或其他合格的產品。

8、《消水規》GB50974-2014第7.4.10條僅針對最遠距離提出了要求,請問兩個消火栓之間的最小距離該如何控制?
答復:參考建筑專業兩個安全出口的距離要求,同時為了方便使用及展開,兩個消火栓之間的最小距離不應小于5m。
9、設置了機械停車位的地下車庫自動噴水滅火系統流量如何計算?機械車位下層車架首尾兩端的噴頭形式如何選取?流量系數K值如何確定?
答復:1)機械車庫應按《噴規》GB50084-2017第5.0.1條確定作用面積及噴水強度,并按第9.1.3條計算頂板下及車架內噴頭的流量之和。計算機械停車庫自動噴水滅火系統設計流量時應附加車架內開啟噴頭流量,當僅有1層車架內置噴頭時,計算開啟車架內噴頭數量為6只,當為2層及以上車架內置噴頭時,計算開啟車架內噴頭數量為12只;
2)可采用邊墻式噴頭,并滿足《噴規》第7.2.6條的要求;
3)K可取80。
10、格柵吊頂在不同通透性程度下噴頭采用上噴還是下噴?其安裝要求?
答復:裝設網格、柵板類通透性吊頂的場所,噴頭設置應符合下面規定:
1)當通透性吊頂面積占吊頂總面積的比例大于70%、且符合GB50084-2017第7.1.13條第1款的要求時,噴頭應設置在吊頂上方,并應符合《噴規》GB50084-2017第7.1.13條第2款的規定。
2)當通透性吊頂面積占吊頂總面積的比例不大于70%,或當通透面積占吊頂總面積的比例大于70%、但不符合GB50084-2017第7.1.13條第1款的要求時,應在吊頂上、下分別設置噴頭,且應在下垂型噴頭的上方設置擋水板。通透性吊頂的擋水板可設置在吊頂內。
11、自動扶梯僅在最底層設置自動噴水滅火系統,還是每層均需設置?
答復:僅在自動扶梯的底部(有地面處)設置自動噴水滅火系統。
12、地下汽車庫的坡道能否設置側噴噴頭進行保護?
答復:側噴噴頭僅適用于中危I級及以下場所,汽車庫屬中危IⅡ級,不能采用側噴噴頭(機械式停車位除外)。
13、消火栓架空管道的系統工作壓力大于1.60MPa時,管材應采用熱鍍鋅無縫鋼管。建筑上部系統工作壓力不大于1.20MPa的樓層能否采用熱鍍鋅鋼管?
答復:建筑上部系統工作壓力不大于1.20MPa的樓層,可以采用熱鍍鋅鋼管。
14、室內消火栓系統中消火栓立管與消火栓短管之間能否采用機械三通連接?
答復:連接室內消火栓和消火栓立管的短支管,負荷較小,采用機械三通應不會對立管和接口造成不良影響,采用機械三通可大大提高工作效率,符合安全與經濟并舉原則。
消火栓立管與水平管之間的連接短管可以采用機械三通連接,但僅限于單只消火栓與立管相連的情況;對于連接多只消火栓或與其他管網連接的情形,仍應采用溝槽式管件。
15、《建筑防煙排煙系統技術標準》GB51251-2017第4.6.14條,側向排煙時計算公式中的db應取排煙口下端煙氣層厚度還是排煙口中心以下煙氣層厚度?位置系數取多少?
答復:排煙口附墻設置或設于排煙風管側向側排煙時,db為側向排煙口中心標高之下煙氣層厚度;汽車庫設于排煙風管側向的側排煙口位置系數取Υ=1。
其余按《建筑防煙排煙系統技術標準》GB51251-2017第4.6.14條執行。
16、住宅建筑按樓層劃分防火分區,是按照每層均設短路隔離模塊?還是按不超32點幾層設置一個短路隔離模塊?
答復:住宅建筑可以多層設置一個短路隔離模塊,但要滿足一個短路隔離器保護的消防設備總數不超過32個點。(此處32點的含義為消防設備的數量不考慮設備地址》)。住宅負一層和地上為不同防火分區。
17、關于消防控制室圖形顯示裝置與其它消防設備的連接問題:
《火規》GB50116-20136.9.2條規定:消防控制室圖形顯示裝置于火災報警控制器、消防聯動控制器、電氣火災監控器、可燃氣體報警控制器等消防設備之間,應采用專用線路連接。實踐中,由于消防控制室圖形顯示裝置、電氣火災監控器、可燃氣體報警控制器、消防設備電源以及氣體滅火控制器、應急照明控制器往往是由不同的施工單位采購的,因此品牌經常不一致,導致完工后消防控制室圖形顯示裝置與電氣火災監控器、可燃氣體報警控制器消防設備電源以及氣體滅火控制器等消防設備之間因通訊接口不一致而不能連接。后期整改,難度很大。
建議:設計單位在施工圖紙中應明確各設備之間的品牌應保持一致或要求各設備具有兼容性,同時在設計交底時應著重強調。
答復:根據《火災自動報警系統設計規范》(GB50116-2013)第4.1.3規定。各受控設備接口的特性參數應與消防聯動控制器發出的聯動控制信號相匹配。故圖紙應注明各設備具有兼容性,保證各設備間可正常通信。
全國統一服務熱線
139 2463 7548
郵箱 :591053467@qq.com
總部地址:深圳市光明區鳳凰街道南太云創谷產業中心3棟6樓